Huoneistokuvaus
53 m²:n luhtitalohuoneistoissa majoittuu jopa kuusi henkilöä. Huoneistosta löytyy vuodepaikat neljälle sekä levitettävä vuodesohva kahdelle. Huoneistoissa on keittiö, sauna, takka ja tilava lasitettu terassi tai parveke. Huoneistot ovat täysin varusteltuja ja hintaan sisältyy useita mukavuuksia, kuten takkapuut ja ilmainen loppusiivous. Myös lemmikit ovat tervetulleita!
Hintaan sisältyy:
Täysin kalustettu ja varusteltu: keittiö, sauna ja kaikki muu valmiina lomaasi
Helppoa lomailua: siivous, pyyhkeet ja vuodevaatteet sisältyvät aina hintaan
Palvelut käytössäsi: kaikki kohteen mukavuudet aina käytettävissäsi
Majoitusalennukset: hotelliyöpymiset -50 % ja loma-asuntojen varaus -25 %
Ravintola- ja kylpyläedut: ravintoloissa -10 % ja kylpylöissä sekä monissa aktiviteeteissa -15 % etu
Edulliset lisäviikot: omistajien lisäviikot äkkilähtöhintaan
Vaivaton vaihtoehto: me huolehdimme omistuksestasi, jotta sinä voit keskittyä lomailuun
Käytä kuten haluat: voit halutessasi vuokrata viikkosi edelleen tai vaihtaa ajankohtaa
Haluamasi palvelut lomalle: käytä resorttien palveluita edullisesti, omien tarpeidesi mukaan
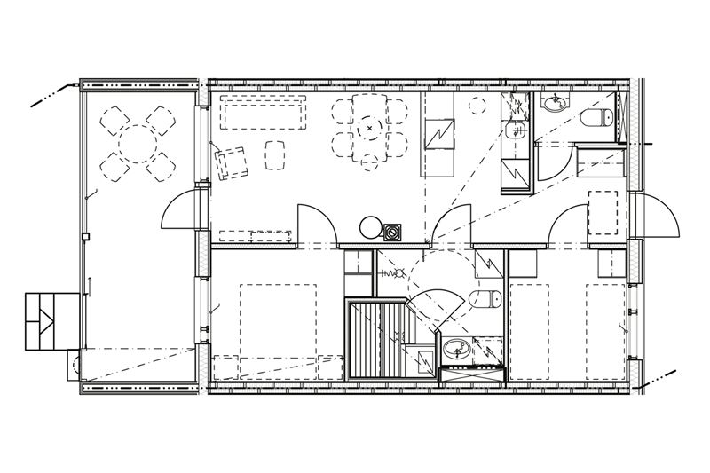
Lomahuoneistojen pohjaratkaisu on suunniteltu joustavaksi ja toimivaksi. Se mukautuu erilaisiin elämäntilanteisiin ja lomailutapoihin.
Lomahuoneistoon mahtuu majoittumaan jopa 6 henkilöä lisävuode huomioiden.
Vierumäen uudet loma-asunnot on suunniteltu vastaamaan aktiivisen ja modernin lomailijan tarpeita. Huolellisesti harkittu design, arkkitehtuuriset ratkaisut ja laadukas varustelu tarjoavat täydelliset puitteet rentouttavalle lomalle.
Ympäröivä upea luonto on tuotu osaksi loma-asuntoja suurten ikkunoiden ja lasitetun terassin kautta. Asunnoissa on käytetty kestäviä ja laadukkaita materiaaleja niin rakenteissa kuin sisustuksessa, mikä takaa miellyttävän ja huolettoman lomakokemuksen.
Esitteestä löydät muun muassa huoneistokohtaisen varustelun, pohjakuvan ja paljon muuta kiinnostavaa tietoa lomahuoneistosta.
Täyttämällä lomakkeen saat esitteen sähköpostiisi. Lähetämme sinulle myös uutiskirjeemme sähköpostiisi.
*Pakollinen kenttä
Tosi kauniisti sisustettu uusi loma-asunto. Erittäin hyvä sauna. Loma-asunnossa on todella rauhallista. Sängyt olivat tosi mukavat!
Laadukkaat asunnot, jotka on hyvin siivottuja. Lomailu on helppoa, kun ei tarvitse muuta tuoda kun omat vaatteet ja ruoka.
Kaikki toimii kerrasta toiseen yhtä hyvin. Jos jotain puutteita tai tarpeita, niin pääsääntöisesti hommat hoidetaan pikaisesti.
